Skip To Content

4273 County Road 1112

Brashear, TX 75420
  • $345,000
  • STATUS: Active
  • ON SITE: 164 Days
  • MLS #: 21074070
UPDATED: 97 min ago
$345,000
  • 1
    BEDS
  • 10.82
    ACRES
  • 1
    BATHS
  • 1
    1/2 BATHS
  • 975
    SQFT
  • $354
    $/SQFT
Neighborhood:
Type:
Single-Family Home
Built:
2023
County:
Area:

School Information

Elementary School:
High School:
School District:
Offered by Tom Hendricks of Janet Martin Realty: 903-885-1234.

Description

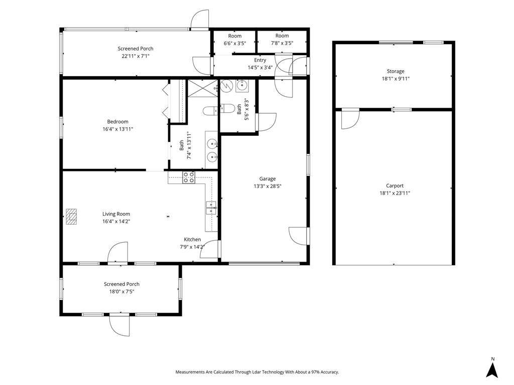
Custom designed Barndo sitting in the middle of over 10 acres with additional covered RV parking and hookups as a bonus. This two year old barndo with spray foam insulation offers a large bedroom (14x15) with large walk in shower, dual sinks and walk in closet. Roomy kitchen area features granite countertops, custom cabinets and is open to the living room. Insulated garage is designed for an easy conversion to another bedroom (if needed) and also has a half bath. Plenty of storage behind the garage along with the additional carport offering more storage and covered parking. Large enclosed front porch offers a relaxing place to sit and look down the long driveway. Home also has its own generator in place. Two covered one uncovered RV spaces offer plenty of options for guest or visitors to have hookups to septic and water. There are two electric meters on the property. Just behind the house will be a cross fence and plenty of space for horses, chickens, animals and a garden. The front of the property is landscaped with many trees including Pecan, Peach, Plum, Oak, Fig and a wide variety of small bushes recently planted to add to the beauty. Located only 5 minutes from I30 for easy commute to Greenville, sulphur Springs or DFW, but still in the country.

Monthly Payment Calculator



© 2026 North Texas Real Estate Information Systems. All rights reserved. IDX information is provided exclusively for consumers' personal, non-commercial use and may not be used for any purpose other than to identify prospective properties consumers may be interested in purchasing. Information is deemed reliable but is not guaranteed accurate by the MLS or eXp Realty | The Tierny Jordan Network. The data relating to real estate for sale or lease on this web site comes in part from NTREIS. Real estate listings held by brokerage firms other than eXp Realty | The Tierny Jordan Network are marked with the NTREIS logo or an abbreviated logo and detailed information about them includes the name of the listing broker. Data last updated 2026-03-15T23:41:44.323.
www.texasonlinehomesearch.com/homes/168448324
Print Image

4273 County Road 1112 Brashear, TX 75420

  • Price: $345,000
  • Status: Active
  • On Site: 164 Days
  • Updated: 97 min ago
  • MLS #: 21074070
1
Beds
1
Baths
1
½ Baths
10.82
Acres
975
SQFT
$354
$/SQFT
2023
Built
Neighborhood:
None
County:
Hopkins
Area:
Brashear
Elementary School:
Sulphurspr
High School:
Sulphurspr
School District:
Sulphur Springs ISD
Property Description
Custom designed Barndo sitting in the middle of over 10 acres with additional covered RV parking and hookups as a bonus. This two year old barndo with spray foam insulation offers a large bedroom (14x15) with large walk in shower, dual sinks and walk in closet. Roomy kitchen area features granite countertops, custom cabinets and is open to the living room. Insulated garage is designed for an easy conversion to another bedroom (if needed) and also has a half bath. Plenty of storage behind the garage along with the additional carport offering more storage and covered parking. Large enclosed front porch offers a relaxing place to sit and look down the long driveway. Home also has its own generator in place. Two covered one uncovered RV spaces offer plenty of options for guest or visitors to have hookups to septic and water. There are two electric meters on the property. Just behind the house will be a cross fence and plenty of space for horses, chickens, animals and a garden. The front of the property is landscaped with many trees including Pecan, Peach, Plum, Oak, Fig and a wide variety of small bushes recently planted to add to the beauty. Located only 5 minutes from I30 for easy commute to Greenville, sulphur Springs or DFW, but still in the country.
Exterior Features

Carport Spaces 2 Construction Metal Siding Covered Spaces 5 Exterior Features RV HookupRV/Boat Parking Fencing Barbed WirePartial Foundation Slab Housing Type Single Detached Lot Description AcreagePasture Lot Size Source Assessor Parking Or Garage CarportDrivewayGarage Patio And Porch Features CoveredEnclosedFront PorchRear Porch Pool On Property No Roof Metal Soil Type Sandy Loam Style Barndominium Waterfront YN No

Interior Features

Appliances DishwasherElectric CooktopElectric OvenMicrowaveWater Filter Attached Garage Yes Basement No Cooling Ceiling Fan(s)Central AirElectric Dining Areas 0 Fireplaces 0 Flooring Ceramic Tile Garage Yes Garage Length 15 Garage Width 15 Handicap YN No Heating CentralElectric Interior Features Built-in FeaturesGranite CountersHigh Speed Internet AvailableOpen Floorplan Kitchen Equipment Generator Laundry Features Electric Dryer HookupIn GarageUtility RoomFull Size W/D AreaDryer Hookup Living Areas 1 Rooms Living Room (1 Level) Bedroom-Primary (1 Level) Kitchen (1 Level) Bath-Full (1 Level) Bath-Half (1 Level)

Property Features

Construction Status Preowned Easements Utilities Exclusions EquipmentPersonal items HOA None Levels One Listing Terms 1031 ExchangeCashConventional Municipal Utility District No Other Structures RV/Boat Storage Possession Closing/Funding Property Attached Yes Property Type Single Family Residence Restrictions Deed Special Notes Aerial PhotoSurvey Available Unexempt Taxes 2313 Utilities Aerobic SepticCity Water Will Subdivide No

North Texas Real Estate Information Systems MLS logo Listing information © 2026 North Texas Real Estate Information System.


© 2026 North Texas Real Estate Information Systems. All rights reserved. IDX information is provided exclusively for consumers' personal, non-commercial use and may not be used for any purpose other than to identify prospective properties consumers may be interested in purchasing. Information is deemed reliable but is not guaranteed accurate by the MLS or eXp Realty | The Tierny Jordan Network. The data relating to real estate for sale or lease on this web site comes in part from NTREIS. Real estate listings held by brokerage firms other than eXp Realty | The Tierny Jordan Network are marked with the NTREIS logo or an abbreviated logo and detailed information about them includes the name of the listing broker. Data last updated 2026-03-15T23:41:44.323.
 
https://bt-photos.global.ssl.fastly.net/ntreis/orig_boomver_1_21074070-2.jpg https://bt-photos.global.ssl.fastly.net/ntreis/orig_boomver_1_21074070-2.jpg https://bt-photos.global.ssl.fastly.net/ntreis/orig_boomver_1_21074070-2.jpg
Logo
eXp Realty | The Tierny Jordan Network
eXp Realty | The Tierny Jordan Network
Dallas | Arlington | Frisco TX,
Offered by Tom Hendricks of Janet Martin Realty: 903-885-1234.